Spacious upper rear unit in an oceanfront triplex just steps from the Balboa Pier fun! | Condo in Newport Beach

2 Bedroom Condo in Balboa Island, Newport Beach
Short Term Lodging Permit: SLP11720
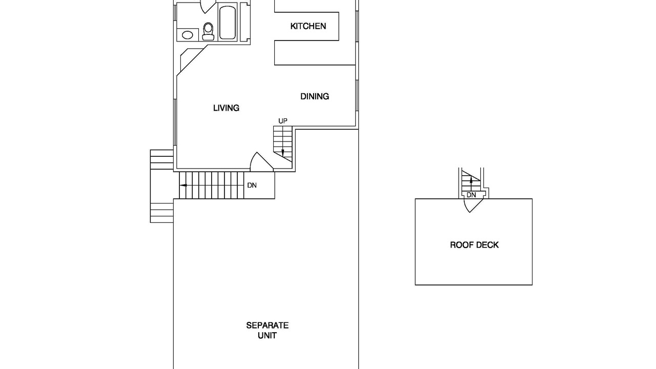
Fantastic and spacious upper rear oceanfront unit in a triplex located just a few steps to the sand with a brand new kitchen. There is a large roof top deck with spectacular ocean and pier views, one car parking, Air Conditioning, shared laundry in the garage, dishwasher and upgraded furnishings. The boardwalk just in front of the house allows for easy access to not only the Balboa Pier but also the Newport Pier.
General Info:
Minimum Age Requirement: The minimum age to rent this unit is 25 years old and to finalize the reservation a secure guest verification portal must be completed.
**All reservations are subject to owner approval**
Pets: Pets are not permitted on or about the premises. ADA service animals required because of a disability are allowed with advanced notice. ESA's, Emotional Support Animals, are not allowed.
Parking: 1 car parking - This unit provides 1 car parking in shared garage. (Tight ally so medium to small cars only)
Bedding: Blankets, mattress pads, bed spreads, pillows, sheets and towels are provided!
Kitchen/Supplies: Our kitchens are supplied with all the basic dishes, utensils and cookware needed for everyday cooking. We also stock some cleaning supplies and dry goods such as paper towels, toilet paper, coffee filters, trash bags, foil, etc. to help you begin your vacation however you may need to purchase additional supplies during your stay. We do not provide certain cooking items including salt, pepper, cooking oil, etc. as well as specialty cookware.
You may want to bring: Charcoal, laundry detergent, beach chairs/equipment, paper plates/plastic cutlery, extra beach towels, pens and paper, etc.
Spacious upper rear unit in an oceanfront triplex just steps from the Balboa Pier fun! is located in Balboa Island. Spacious upper rear unit in an oceanfront triplex just steps from the Balboa Pier fun! provides accommodation, featuring Wellness Facilities, Parking, TV, among other amenities. This Condo features Wellness Facilities, Parking, TV, to make your stay a comfortable one.
Spacious upper rear unit in an oceanfront triplex just steps from the Balboa Pier fun! has 2 Bedrooms , 2 Bathrooms, and max occupancy of 5 people. The minimum rental for this property is 1 nights, but this can change depending on the season you plan on staying. Previous guests have given good rated it, and VRBO labeled it a top-rated Condo because of the excellent services rendered by the owner or manager of this Condo, and has consistently provided great experiences for their guests. Most families or guests that use it recommend it to their friends and some of them are repeat guests. Condo has a friendly neighborhood, and the Balboa Island has interesting places to visit. If you want to learn more about the Condo in Balboa Island, such as places to visit and things to do nearby, you can check below to learn more.
Amenities
Policies
Extra-person charges may apply and vary depending on property policy government-issued photo identification and a credit card, debit card, or cash deposit may be required at check-in for incidental charges host has indicated there is a carbon monoxide detector on the property host has indicated there is a smoke detector on the property onsite parties or group events are strictly prohibited property registration number slp11720 safety features at this property include a first aid kit and a deadbolt lock special requests are subject to availability upon check-in and may incur additional charges; special requests cannot be guaranteed this property is managed through our partner, vrbo. you will receive an email from vrbo with a link to a vrbo account, where you can change or cancel your reservation