Luxurious Venice Beach Oasis Modern Home | Apartment in Los Angeles

4 Bedroom Apartment in Del Rey, Los Angeles
Welcome to our stunning private compound in Venice, CA, perfect for a luxurious staycation or vacation near Venice Beach. This architectural gem offers 4 bedrooms, one den, 4 bathrooms, a chef`s kitchen, a pool, BBQ, and 3 bikes for beach rides. Enjoy the warm ambiance with natural materials, en suite bathrooms, contactless check-in, and high-speed internet. Families welcome, Create unforgettable memories in this unique retreat.
A $1,000 damage deposit will be applied to the guest’s account during the stay. Provided no damage is found to the house, furniture, or equipment, the full deposit will be released back to the guest’s account within 5 days after checkout.
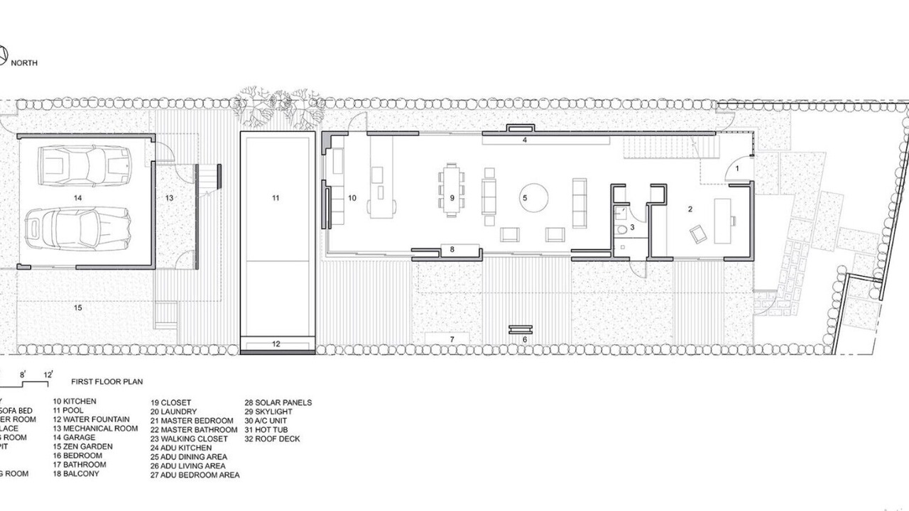
Nestled between local and neighborhood businesses, this beach house stands out amongst a row of one-story homes from the 1920s and 1930s. The project transformed a dark 1918 Venice house into a bright and airy coastal retreat.
The interior courtyard and surrounding yards create an extravagant and unified open space that perfectly complements the beach weather, sun, and water elements. Unlike other homes in the neighborhood, this house provides plenty of setback space to allow for a 15-foot side yard, creating a seamless connection between indoors and outdoors. The use of natural materials, including wood, glass, concrete, and local landscaping, emphasizes the beachy feel of the location.
In a departure from the norm, the main entrance of the Venice Beach house is closed off with a tall white wall, serving as a barrier to block out the noise and visual distractions of nearby commercial areas. The wall closure has turned the weakest point of the site into an opportunity, making a bold statement from the existing norm. The over-the-garage ADU unit maximizes the usage of space and provides total privacy for a tenant who enjoys their rooftop and entrance.
The building is designed to face south, allowing natural sunlight to shine through all day, offsetting the continual ocean breeze of Venice Beach. The second-story balcony serves as a shading device, eliminating harsh summer sunlight and inviting winter sunlight. Podocarpus trees hedge row along the edges of the site, providing privacy while allowing maximum openness to the interiors of the house.
You have access to the garage, the entire side, and the backyard. However, please note that the stairs leading to the unit over the garage are not accessible as it is a separate listing and may or may not be occupied during your stay. Additionally, the trash bins are shared between the two units, so please be mindful that the other unit also has access to them.
We are available to offer you help with your stay. Please reach out for any questions or concerns.
walking distance to Costco, bar, restaurant, easy to get access, bus, and public transportation. Plenty of scooters around. 5 min to the famous Venice Beach.
2 paddle boards are available for guest use at the beach.
Pooya Goudarzi designed the house, which has won three design awards and has been featured on various sites. The awards include the Muse Award, International Design Award, and Novum Design Award.
Luxurious Venice Beach Oasis Modern Home is located in Del Rey. Luxurious Venice Beach Oasis Modern Home provides accommodation, featuring Wellness Facilities, Ocean View, Security/Safety, among other amenities. This Apartment features Wellness Facilities, Ocean View, Security/Safety, to make your stay a comfortable one.
Luxurious Venice Beach Oasis Modern Home has 4 Bedrooms , 2 Bathrooms, and max occupancy of 8 people. The minimum rental for this property is 1 nights, but this can change depending on the season you plan on staying. Previous guests have given good rated it, and VRBO labeled it a top-rated Apartment because of the excellent services rendered by the owner or manager of this Apartment, and has consistently provided great experiences for their guests. Most families or guests that use it recommend it to their friends and some of them are repeat guests. Apartment has a friendly neighborhood, and the Del Rey has interesting places to visit. If you want to learn more about the Apartment in Del Rey, such as places to visit and things to do nearby, you can check below to learn more.
Amenities
Facility Overview
-
Heating
-
Air conditioning
-
Hair dryer
-
2+ bathrooms
-
Bed sheets provided
-
Sofa bed
-
4 bedrooms
-
Dining table
-
Fireplace
-
Toaster
-
Dishwasher
-
Oven
-
Refrigerator
-
Microwave
-
Stovetop
-
Coffee/tea maker
-
Cookware/dishes/utensils
-
Washing machine and dryer
-
Laundry facilities
-
Near the beach
-
Electric car charging station on site
-
Onsite parking
-
2 total pets
-
Welcoming cats and dogs only
-
Pet friendly
-
Stairway handrail height (inches): 38
-
If you have requests for specific accessibility needs, please contact the property using the information on the reservation confirmation received after booking.
-
Area rugs in public areas
-
Smoke-free property
-
Smooth flooring in public areas
-
Handrails in stairways
-
Paddleboard on site
-
TV
-
Unit size: 2293 sq ft (213 sq m)
-
At least 80% lighting from LEDs
-
Double-glazed windows
-
Local artist showcase
-
Energy-saving switches
-
Recycling
-
Desk
-
Children's books
-
Playground
-
Travel crib
-
Baby monitor
-
Children's dinnerware
-
Iron/ironing board
-
Change of towels (on request)
-
Change of bedsheets (on request)
-
WiFi available
-
Garden
-
Barbecue grill
-
Balcony
-
Firepit
-
Smoke detector installed (host has indicated there is a smoke detector on the property)
-
First aid kit
-
Fire extinguisher
-
Carbon monoxide detector installed (host has indicated there is a carbon monoxide detector on the property)
-
Sauna
Policies
Extra-person charges may apply and vary depending on property policy government-issued photo identification and a credit card, debit card, or cash deposit may be required at check-in for incidental charges host has indicated there is a carbon monoxide detector on the property host has indicated there is a smoke detector on the property onsite parties or group events are strictly prohibited property registration number hsr24-000485 safety features at this property include a fire extinguisher and a first aid kit special requests are subject to availability upon check-in and may incur additional charges; special requests cannot be guaranteed this property is managed through our partner, vrbo. you will receive an email from vrbo with a link to a vrbo account, where you can change or cancel your reservation